Le projet Boissière s’inscrit dans une démarche ambitieuse portant sur trois bâtisses de caractère, nichées au cœur des bois dans les Yvelines. Cet ensemble architectural, représentant plus de 1 500 m², se distingue par la singularité de chaque construction, tant par son histoire que par ses spécificités structurelles et spatiales. Chaque bâtiment a présenté des contraintes et des particularités propres, nécessitant une approche rigoureuse et méthodique afin de comprendre pleinement l’existant avant toute projection future.
NOTRE MISSION
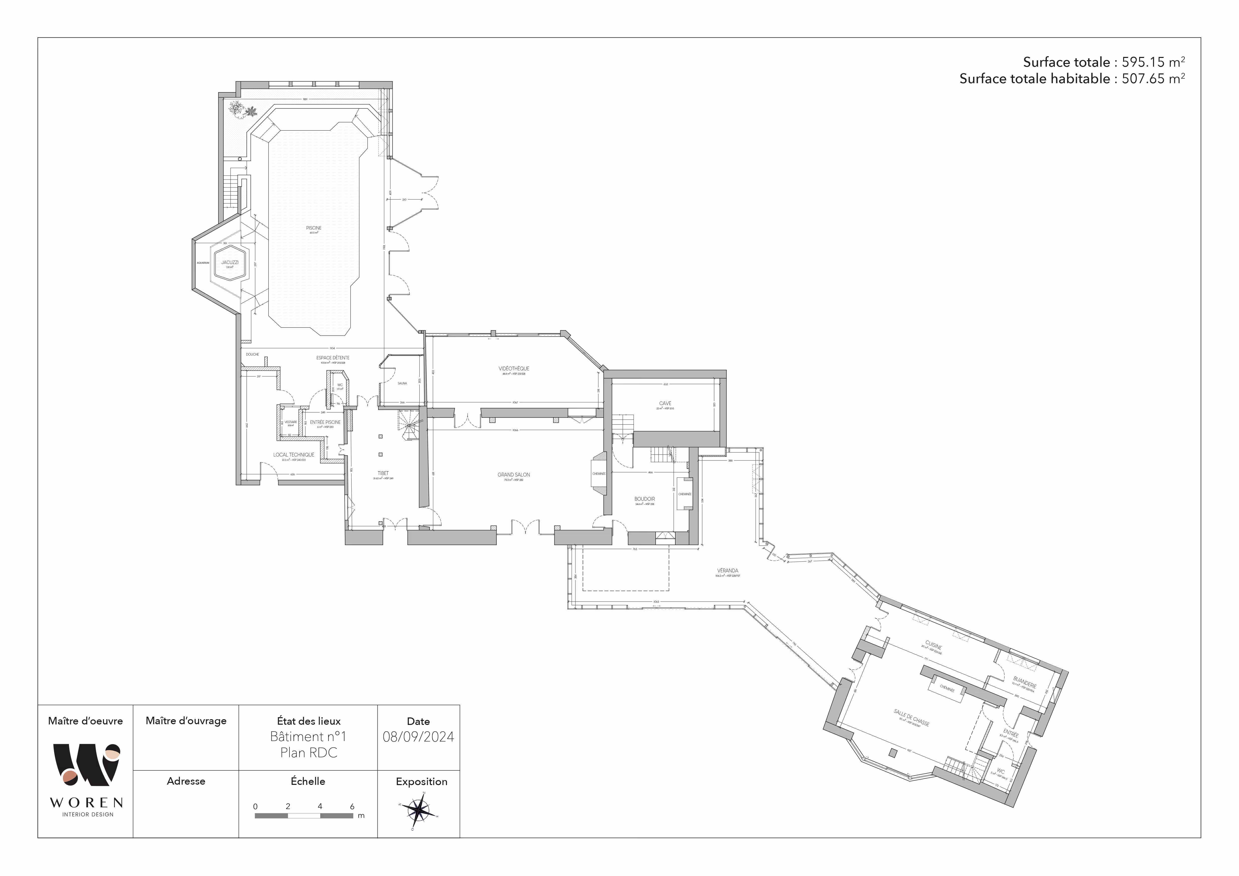
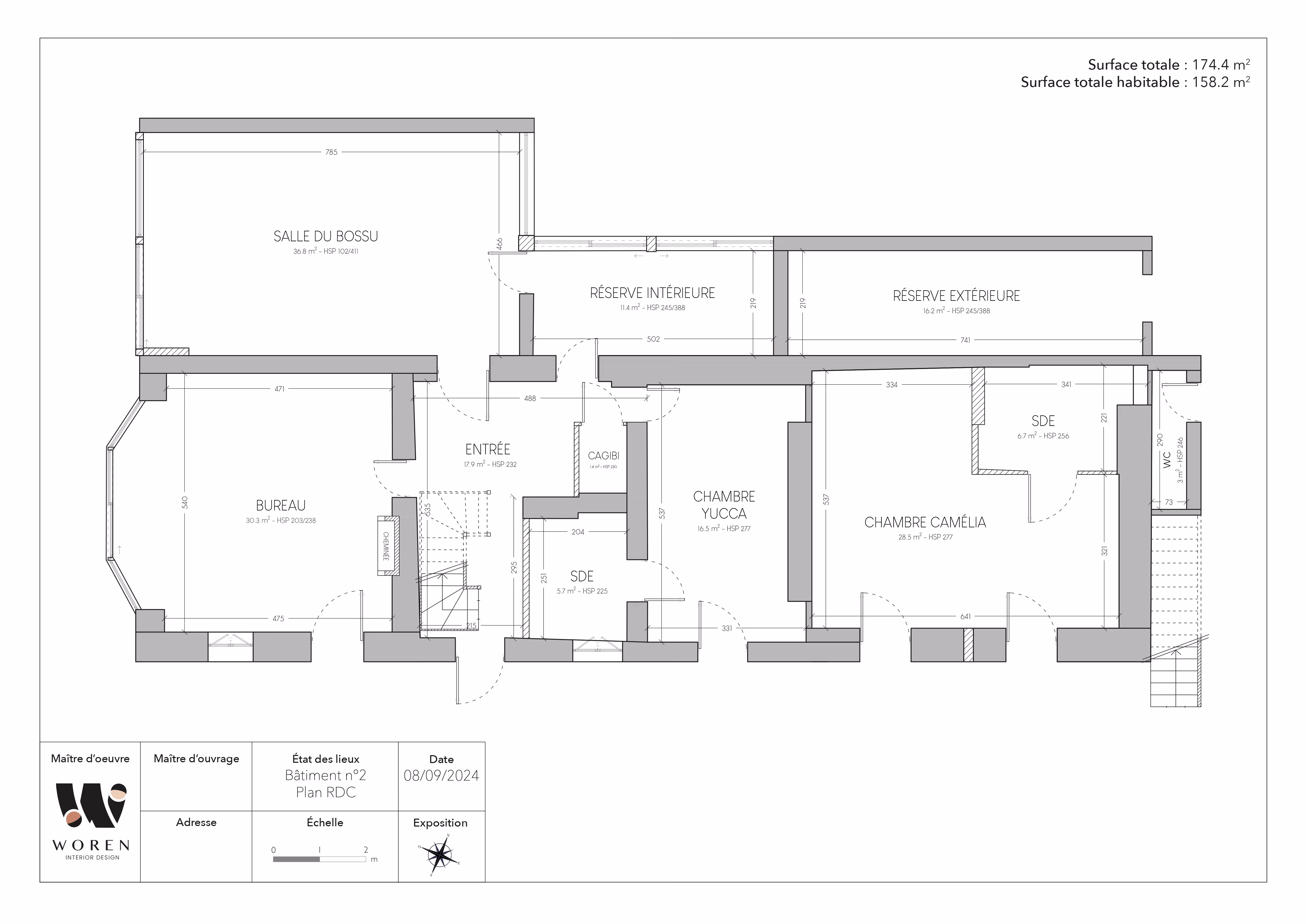
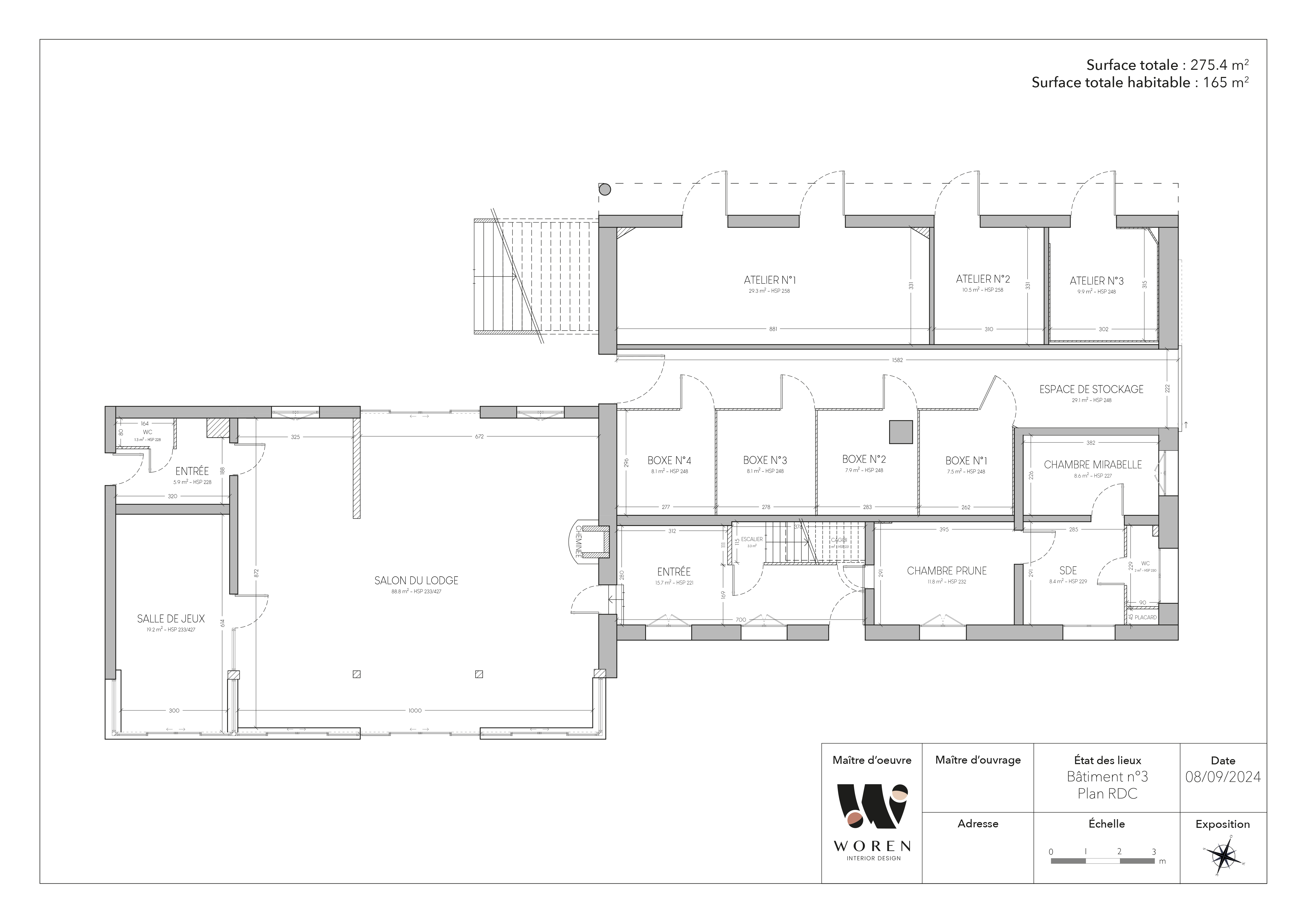
Notre intervention a consisté à prendre en charge l’intégralité des relevés de mesure et de l’état des lieux des trois bâtisses. En l’absence totale de plans existants, ce travail s’est révélé fondamental pour établir une base fiable et exploitable en vue des futures phases de rénovation.
Nous avons procédé à un relevé précis de chaque espace, consignant l’ensemble des éléments architecturaux : volumes, hauteurs sous plafond, ouvertures, épaisseurs de murs, circulations, ainsi que les particularités structurelles propres à chaque bâtiment. Ce travail minutieux a permis de restituer fidèlement la réalité du site à travers des plans détaillés et rigoureux.










UNE ANALYSE APPROFONDIE DE L’EXISTANT
Au-delà des simples relevés, cette phase a permis une lecture globale et approfondie du site. L’analyse des proportions, des circulations et des relations entre les espaces a mis en lumière le potentiel architectural de chaque bâtisse, tout en identifiant les contraintes techniques à prendre en compte.
Cette compréhension fine de l’existant constitue un outil précieux pour orienter les choix futurs, garantir la cohérence du projet et respecter l’identité architecturale des lieux.
UNE BASE DE TRAVAIL ESSENTIELLE
Les plans d’état des lieux réalisés constituent aujourd’hui un socle indispensable à la réflexion architecturale. Ils offrent une lecture claire et cohérente de l’existant, permettant d’anticiper les contraintes techniques, d’optimiser les interventions futures et de sécuriser l’ensemble du processus de rénovation.
Cette phase préparatoire, souvent invisible mais essentielle, garantit la pertinence et la faisabilité des projets à venir, tout en respectant l’âme et l’authenticité des bâtisses existantes.

